| ID # | RLS20072716 |
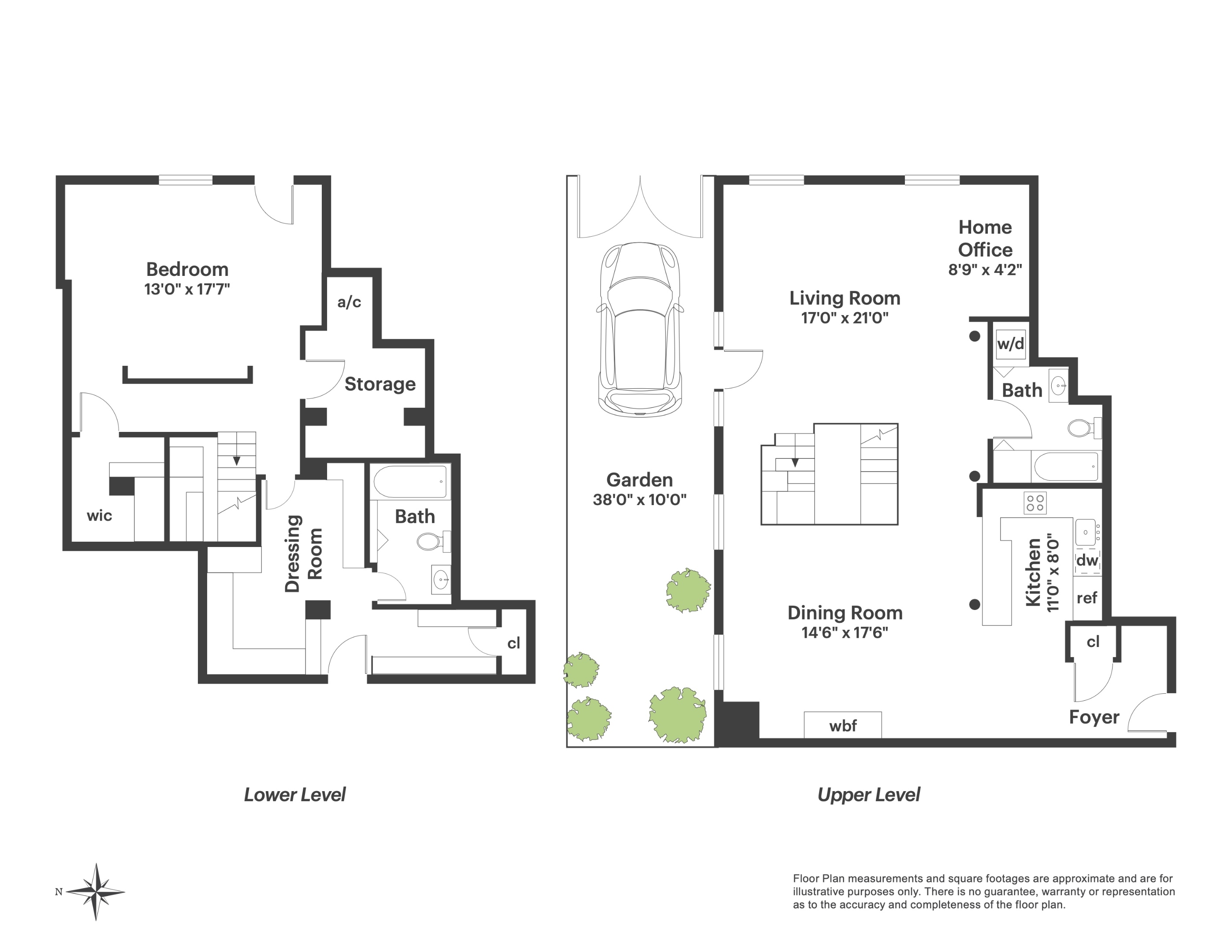
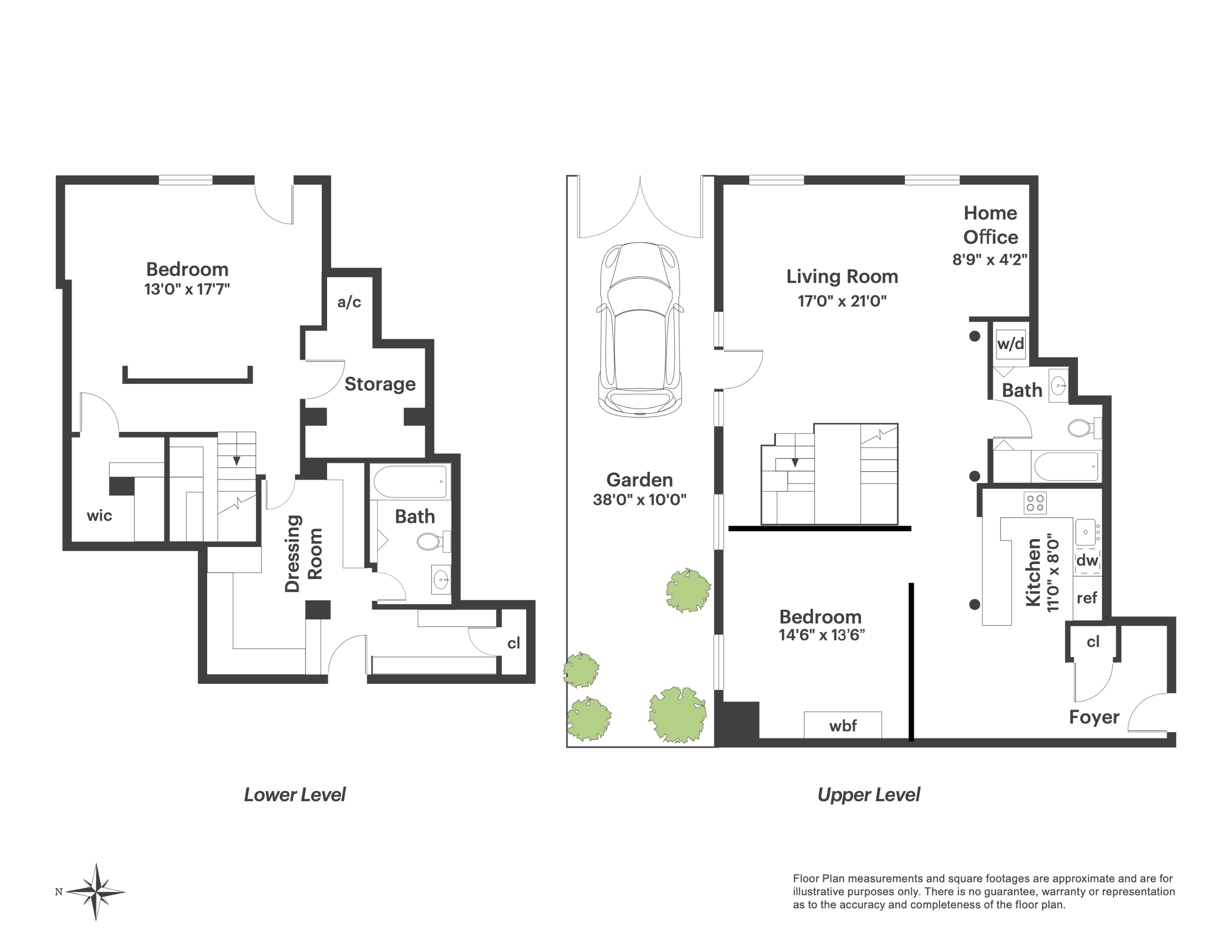
| বর্ণনা | ২ বেডরুম , ২ বাথরুম, ডিশ ওয়াশার মেশিন, অভ্যন্তরীণ বর্গফুট: 1700 ft2, 158m2, ভবনে 9 টি ইউনিট, বিল্ডিং ৩ তলা আছে DOM: ৮ দিন |
| নির্মাণ বছর | 1930 |
| বাস | ৩ মিনিট দূরে : B57 |
| ৬ মিনিট দূরে : B61 | |
| ৭ মিনিট দূরে : B103 | |
| পাতাল রেল ট্রেন | ৩ মিনিট দূরে : F, G |
| রেল ষ্টেশন | ১ মাইল দূরে : "Atlantic Terminal রেল ষ্টেশন" |
| ২.৪ মাইল দূরে : "Nostrand Avenue রেল ষ্টেশন" | |
![]() |
ডুপ্লেক্স লফট প্রাইম ক্যারল গার্ডেনস লোকেশনে ব্যক্তিগত খোলা স্থান এবং পার্কিং সহ। এটি সেই অনন্য বাড়ি যা আপনি খুঁজছিলেন!
এখন একটি বড় ১-বেডরুম হিসেবে কনফিগার করা হয়েছে। এটি একটি অস্থায়ী দেয়াল (মালিকের অনুমোদন নিয়ে) ব্যবহার করে ২-বেডরুমে রূপান্তরিত করা যেতে পারে।
প্রায় ১,৭০০ অভ্যন্তরীণ স্কয়ার ফুট এবং প্রায় ৪০০ স্কয়ার ফুট ব্যক্তিগত খোলা স্থান আছে।
প্রধান স্তরের বাৎসরিক বিন্যাস:
* খোলা লিভিং এবং ডাইনিং এলাকা
* খোলা রান্নাঘর
* কাঠ পুড়িয়ে চালিত ফায়ারপ্লেস
* অফিস, ডেন, বা দ্বিতীয় ঘুমের স্থান হিসেবে উপযুক্ত অতিরিক্ত এলাকা
* স্টল শাওয়ার সহ পূর্ণ বাথরুম
* বড় স্ট্যাকড ওয়াশার/ড্রায়ার
নিচের স্তর:
* পূর্ণ-তল প্রাথমিক স্যুট
* অবিশ্বাস্য পৃথক ড্রেসিং রুম
* একাধিক ওয়াক-ইন ক্লোজেট এবং সঞ্চয়স্থান
* জাকুজি টব সহ পূর্ণ বাথরুম
বৈশিষ্ট্য:
ইন-ইউনিট ওয়াশার/ড্রায়ার
মার্কিন কেন্দ্রীয় এয়ার কন্ডিশনিং
দুটি আলাদা প্রবেশদ্বার (বিল্ডিং প্রবেশ এবং ব্যক্তিগত রাস্তার স্তরের প্রবেশদ্বার)
রাস্তার জন্য ব্যক্তিগত গেট সহ ব্যক্তিগত খোলা স্থান
ব্যক্তিগত খোলা স্থানে পার্কিং
পশু-পালনকারী বন্ধুত্বপূর্ণ
স্মিথ এবং হয়ার স্ট্রিটের মধ্যে অবস্থিত, F এবং G ট্রেন, প্রতিবেশী খাবারের স্থান এবং শপিংয়ের সুবিধার অ্যাক্সেস সহ।
লিজের শর্তাবলী
• ১-বছরের লিজ
• আবেদন ফি: $২০
Read the English version or choose another language
This information is not verified for authenticity or accuracy and is not guaranteed and may not reflect all real estate activity in the market. © 2026 The Real Estate Board of New York, Inc., All rights reserved.







