| MLS # | 967123 |
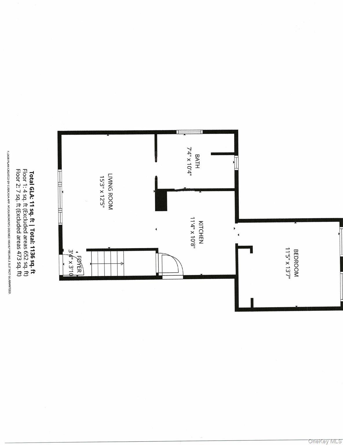
| বর্ণনা | ৩ বেডরুম , ২ বাথরুম, ডিশ ওয়াশার মেশিন, ওয়াশার মেশিন, জমির আয়তন: ০.১৭ একর, অভ্যন্তরীণ বর্গফুট: 1150 ft2, 107m2 DOM: ২৩ দিন |
| নির্মাণ বছর | 1930 |
| কর (প্রতি বছর) | $৩,৩৮৩ |
| জ্বালানীর ধরণ | তেল ( পেট্রোলিয়াম ) Oil |
| বেসমেন্ট | সম্পূর্ণ বেসমেন্ট Full basement |
![]() |
শান্ডালি ম্যানর হাউসে আপনাকে স্বাগতম, এই নতুনভাবে সংস্কার করা, আকর্ষণীয় ঔপনিবেশিক বাড়িটি লিভিংস্টন ম্যানরের অত্যন্ত চাহিদাপূর্ণ শহরে অবস্থিত। এর প্রাণবন্ত ও বন্ধুত্বপূর্ণ পরিবেশের জন্য পরিচিত লিভিংস্টন ম্যানর স্থানীয় ব্রিউয়ারি, আরামদায়ক ক্যাফে, অনন্য দোকান, একটি শিল্প গ্যালারি, বিখ্যাত ফ্লাই ফিশিং মিউজিয়াম এবং আরও অনেক কিছু আপনার নাগালের মধ্যে অফার করে একটি অসাধারণ জীবনধারা।
এই সুন্দরভাবে আপডেট করা বাড়িটি আধুনিক আপগ্রেড প্রদান করে যখন ক্লাসিক আকর্ষণ বজায় রাখে। অভ্যন্তরীণ সাজসজ্জায় নতুন বিলাসবহুল ফ্লোরিং অন্তর্ভুক্ত রয়েছে, পাশাপাশি দীর্ঘস্থায়ী গুণমান এবং আরামের জন্য ব্র্যান্ড-নতুন সাবফ্লোর এবং আন্ডারলেমেন্ট। নতুন দরজা এবং মোল্ডিং দিয়ে চিন্তাশীলভাবে আপডেট করা হয়েছে, বাড়িটি উজ্জ্বল এবং আমন্ত্রিত ডিজাইন প্রদর্শন করে। ব্র্যান্ড নতুন ২০০ অ্যাম্প বৈদ্যুতিক, সমস্ত নতুন লাইটিং, আউটলেট এবং সুইচ। অত্যাশ্চর্য রান্নাঘরে সজ্জিত রয়েছে সাদা শেকার ক্যাবিনেট, স্টেইনলেস স্টীল যন্ত্রপাতি, এবং আড়ম্বরপূর্ণ বুচার ব্লক কাউন্টারটপ, রান্না এবং বিনোদনের জন্য নিখুঁত স্থান তৈরি করে।
বাড়িটিতে দুটি সম্পূর্ণভাবে সংস্কার করা বাথরুম রয়েছে, প্রতিটি তলায় একটি করে সুবিধাজনকভাবে অবস্থিত, কার্যকারিতা এবং আধুনিক আকর্ষণ উভয়ই প্রদান করে। বাইরে, একটি সম্পূর্ণ বেড়া দেওয়া সম্পত্তি উপভোগ করুন যা গোপনীয়তা, বাহ্যিক আনন্দের জন্য জায়গা এবং অতিরিক্ত বহুমুখিতা প্রদান করে।
পাবলিক জল এবং গলন পরিষেবার সাথে, এই সম্পত্তিটি সুবিধা এবং মানসিক শান্তি প্রদান করে। আপনি প্রাথমিক বাসস্থানের সন্ধান করছেন, সপ্তাহান্তের গেটওয়ে, এয়ারবিএনবি সুযোগ, বা বিনিয়োগ ভাড়া, এই বাড়িটি ক্যাটস্কিলসের অন্যতম আকর্ষণীয় গন্তব্যে অসাধারণ লচিলতা এবং মূল্য প্রদর্শন করে।
লিভিংস্টন ম্যানর স্কুল জেলা
মালিক এনওয়াইএস লাইসেন্সধারী সহযোগী রিয়েল এস্টেট ব্রোকার
Welcome to Shandalee Manor House, this newly renovated, charming Colonial nestled in the highly sought-after town of Livingston Manor. Known for its vibrant and welcoming atmosphere, Livingston Manor offers an incredible lifestyle with local breweries, cozy cafes, unique shops, an art gallery, the renowned Fly Fishing Museum, and so much more right at your fingertips.
This beautifully updated home offers modern upgrades while maintaining classic charm. The interior features new luxury flooring throughout, along with brand-new subfloors and underlayment for lasting quality and comfort. Thoughtfully updated with new doors and molding, the home showcases a bright and inviting design. Brand new 200 amp electric, all new lighting, outlets and switches. The stunning kitchen is equipped with white shaker cabinets, stainless steel appliances, and stylish butcher block countertops, creating the perfect space for cooking and entertaining.
The home includes two fully renovated bathrooms, conveniently located with one on each floor, offering both functionality and modern appeal. Outside, enjoy a fully fenced property providing privacy, space for outdoor enjoyment, and added versatility.
With public water and sewer services, this property offers convenience and peace of mind. Whether you are searching for a primary residence, weekend getaway, Airbnb opportunity, or investment rental, this home presents exceptional flexibility and value in one of the Catskills’ most desirable destinations.
Livingston Manor School District
Owner is NYS Licensed Associate Real Estate Broker
This information is not verified for authenticity or accuracy and is not guaranteed and may not reflect all real estate activity in the market. Listing courtesy of Signature Premier Properties © 2026







