| ID # | 967594 |
| বর্ণনা | ১ বেডরুম , ১ বাথরুম, ডিশ ওয়াশার মেশিন, ওয়াশার মেশিন, অভ্যন্তরীণ বর্গফুট: 872 ft2, 81m2 DOM: ২১ দিন |
| নির্মাণ বছর | 1960 |
![]() |
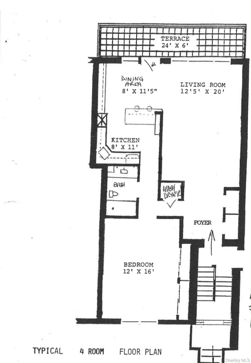
স্বাগতম 31 মেইপল অ্যাভিনিউ, ইউনিট 2এ, হেস্টিংস-অন-হাডসনে, নিউ ইয়র্কের একটি চমৎকার আধুনিক এবং স্মার্ট ডিজাইন করা বাড়িতে। এই সুন্দরভাবে নবনবীকৃত ইউনিটটি শৈলী এবং সুবিধার একটি মসৃণ মিশ্রণ অফার করে, যা আধুনিক জীবনের জন্য পারফেক্ট। একটি খোলা এবং আমন্ত্রণমূলক স্থানএ প্রবেশ করুন যেখানে প্রবেশপথে দুটি আলমারি রয়েছে এবং এটি বড়, সূর্যোজ্জ্বল লিভিং রুমে নিয়ে যায়। রান্নাঘরটি সহজেই ডাইনিং এলাকায় প্রবাহিত হয়, যা প্রতিদিনের খাবার এবং আমন্ত্রণে উপযুক্ত পরিবেশ সৃষ্টি করে। রান্নাঘরে প্রিমিয়াম স্টেইনলেস স্টীল যন্ত্রপাতি এবং স্টাইলিশ কোর্টজ কাউন্টারটপ রয়েছে। লিভিং স্পেসটি একটি বড় 24' x 6' টেরেসে প্রসারিত, যা হাডসন নদী এবং প্যালিসেডসের দৃষ্টিনন্দন চতুর্দিকে বছরে সব সময়ই সুন্দর দৃশ্য উপস্থাপন করে—বিশ্রাম এবং বাইরের খাবারের জন্য এটি একটি পারফেক্ট স্থান। ভিতরে, ইউনিটটি পুনরায় ফিনিশড হার্ডউড ফ্লোরের সাথে সজ্জিত যা সারা ঘরে একটি আভিজাত্যের স্পর্শ যোগ করে। পর্যাপ্ত আকারের শোবার ঘরটি চিন্তাশীলভাবে ডিজাইন করা হয়েছে দুটি বড় আলমারির সাথে এবং এটি একটি প্রশান্তির অনুভূতি প্রদান করে। বাথরুমটি স্টাইলিশভাবে নবনবীকৃত হয়েছে, একটি রিসোর্টের মতো পরিবেশ প্রদান করে। একটি চাহিদাপূর্ণDowntown এলাকায় অবস্থিত, বাড়িটি মেট্রো নর্থ ট্রেন স্টেশন, বিভিন্ন শ্রেষ্ঠ রেস্তোরাঁ, দোকান, জলসীমার পার্ক এবং একটি প্রাণবন্ত কৃষক বাজার থেকে মাত্র কয়েক পা দূরে রয়েছে, যা কয়েক মিনিটের মধ্যে বিভিন্ন কার্যকলাপ এবং সেবা অফার করে। এই বিশেষ আবাসনে বিলাসিতা, স্বাচ্ছন্দ্য এবং সুবিধার নিখুঁত সামঞ্জস্যের অভিজ্ঞতা নিন।
Welcome to a stunningly modern and smartly designed home at 31 Maple Avenue, Unit 2A, Hastings-on-Hudson, NY. This beautifully renovated unit offers a seamless blend of style and convenience, perfect for modern living. Step into an open and inviting space where entry hall features two closets and leads into the large, sun-filled living room. The kitchen effortlessly flows into the dining area, creating an ideal setting for both everyday meals and entertaining. The kitchen boasts premium stainless steel appliances alongside stylish quartz countertops. The living space extends to a generous 24' x 6' terrace, offering breathtaking year-round views of the Hudson River and the Palisades—a perfect spot for relaxation and outdoor dining. Inside, the unit features refinished hardwood floors that add a touch of elegance throughout. The generously sized bedroom is thoughtfully designed with two spacious closets and offers a sense of tranquility. The bathroom has been stylishly renovated, providing a resort-like setting. Located in a desirable downtown area, the home is just steps away from the Metro North train station, a variety of excellent restaurants, shops, waterfront parks, and a vibrant farmers market, offering an array of activities and services just minutes away. Experience the perfect harmony of luxury, comfort, and convenience in this exceptional residence.
This information is not verified for authenticity or accuracy and is not guaranteed and may not reflect all real estate activity in the market. Listing courtesy of Compass Greater NY, LLC © 2026







