| ID # | RLS20072243 |
| বর্ণনা | ৩ বেডরুম , ২ বাথরুম, ওয়াশার মেশিন, ড্রায়ার মেশিন, অভ্যন্তরীণ বর্গফুট: 1945 ft2, 181m2, ভবনে 382 টি ইউনিট, বিল্ডিং ৪২ তলা আছে DOM: ৪৫ দিন |
| নির্মাণ বছর | 1914 |
| রক্ষণাবেক্ষণ ফি | $২,৩৯৬ |
| কর (প্রতি বছর) | $২৬,৭২৪ |
| পাতাল রেল ট্রেন | ১ মিনিট দূরে : J, Z, 2, 3 |
| ২ মিনিট দূরে : 4, 5 | |
| ৩ মিনিট দূরে : R, W | |
| ৪ মিনিট দূরে : 1 | |
| ৬ মিনিট দূরে : A, C | |
| ৮ মিনিট দূরে : E | |
![]() |
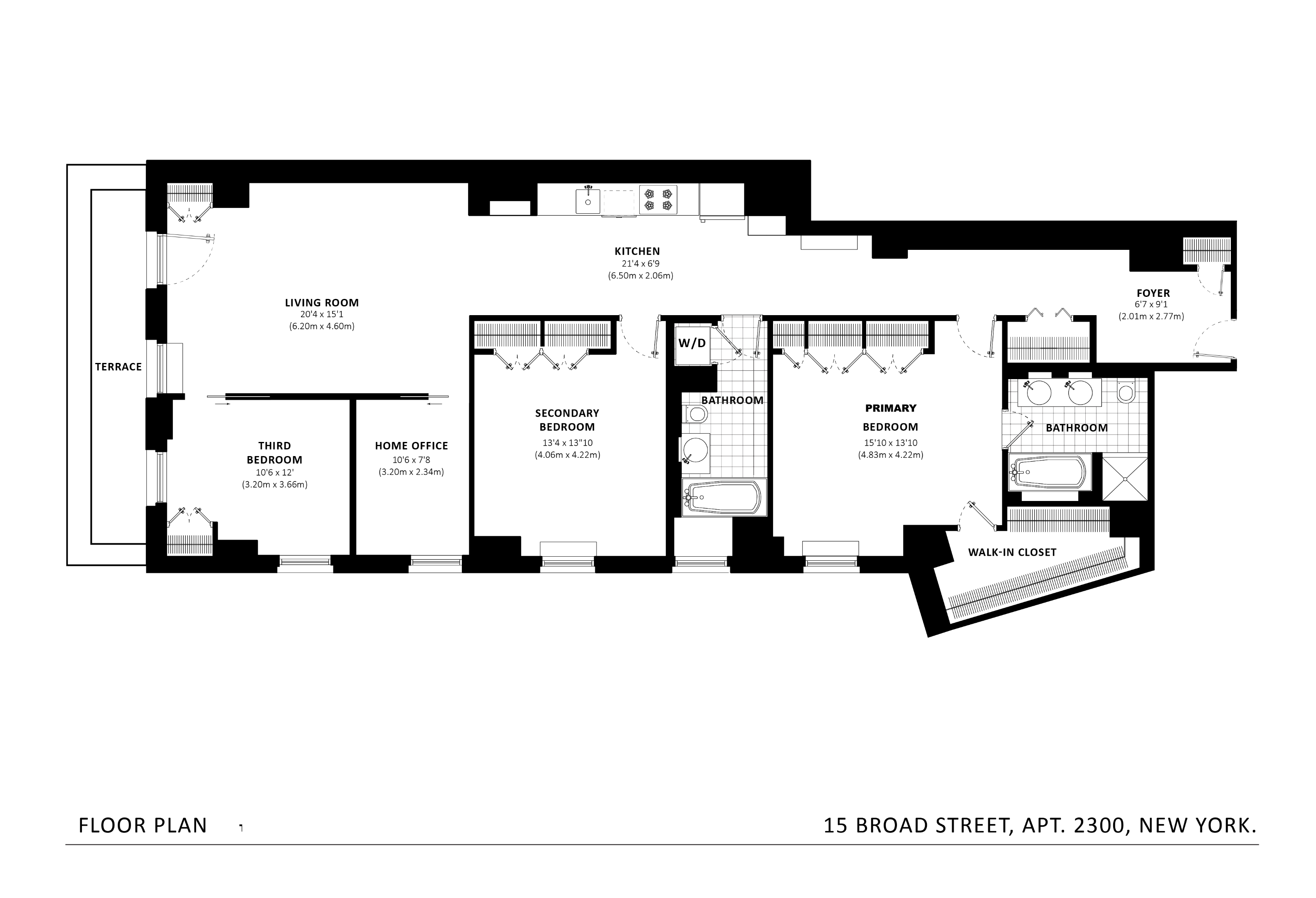
স্বাগতম এই বিরল এবং বৃহৎ কোণার আবাসনে, যেখানে রয়েছে ৩টি শয়নকক্ষ/২টি বাথরুম, একটি জানালাওয়ালা অফিস, এবং একটি ব্যক্তিগত বেলকনি, ডাউনটাউন কন্ডোমিনিয়ামে ফিলিপ স্টার্কের তৈরি, যা ফিডির অন্যতম প্রধান সুবিধা সংবলিত আবাসিক বিলাসবহুল কন্ডো।
প্রথমতঃ
এই বাড়িটি বিশাল জানালা, উঁচু সিলিং, প্রচুর স্টোরেজ এবং উত্তর ও পশ্চিম শহরের দৃষ্টিভঙ্গি সম্পন্ন উষ্ণ আলো এবং ক্লাসিক ডাউনটাউন শক্তি দ্বারা পরিপূর্ণ।
যখন আপনি প্রবেশ করবেন, তখন একাধিক আলমারী দিয়ে সাজানো একটি দুর্দান্ত ফয়্যার সেট করে। বাম দিকে, ল্যাভেন্ডার প্রাথমিক স্যুট সম্প্রসারিত হয় - তিনটি আলমারি এবং একটি বড় ওয়াক-ইন সহ একটি বিস্তৃত স্থান, এবং মার্বেল ডাবল ভ্যানিটি, একটি ইতালীয় কাচ আবৃত শাওয়ার, এবং একটি সোকিং টব সহ একটি স্পা-জাতীয় এনসুইট বাথরুম। করিডোরে এগিয়ে গেলে, একটি অতিথি বাথরুম প্রচুর জায়গা এবং প্রাকৃতিক আলোর সাথে, এবং একটি নির্জন আলমারী ইন-ইউনিট ওয়াশার এবং ড্রায়ারকে লুকিয়ে রেখেছে। ডানদিকে, অত্যাধুনিক রান্নাঘরটি সাদা ল্যাকার ক্যাবিনেটারি, থাসস মার্বেল কাউন্টারটপ, এবং প্রচুর স্টোরেজ অফার করে। ওপেন লিভিং এবং ডাইনিং এলাকা প্রাকৃতিক আলো দ্বারা পূর্ণ এবং একটি ব্যক্তিগত বেলকনিতে এবং নিউ ইয়র্ক স্টক এক্সচেঞ্জের প্রতীকী দৃশ্যের দিকে সম্প্রসারিত। লিভিং এলিয়ার বাম দিকে, দ্বিতীয় শয়নকক্ষটি দারুণ আলমারি এবং পশ্চিমমুখী এক্সপোজার সহ ১১'২" উঁচু সিলিংয়ের সুবিধা নিয়ে গঠিত, তারপর একটি সুন্দর বাড়ির অফিস বড় জানালাসহ। উজ্জ্বল কোণার তৃতীয় শয়নকক্ষটি দুটি বৃহৎ জানালাতে, প্রচুর স্টোরেজে, এবং উত্তর ও পশ্চিম শহরের দৃষ্টিভঙ্গির সাথে।
সুবিধাদি:
১৫ ব্রড একটি চমৎকার সুবিধার তালিকা প্রদান করে: ২৪ ঘণ্টার দরজার গার্ড ও কনসিয়ের্জ; আধুনিক সরঞ্জামসহ একটি পূর্ণ স্কেলের জিম; একটি ল্যাপ সাঁতার দেওয়ার পুল, একটি জাকুজি হট টব এবং সোনা রুমসহ; একটি বাস্কেটবল কোর্ট; একটি স্কোয়াশ কোর্ট; একটি যোগ/ব্যালে স্টুডিও; একটি শিশুদের ঘর; একটি বোলিং এলি (আবাসিকদের এবং তাদের অতিথিদের জন্য বিনামূল্যে!); একটি ইন-বিল্ডিং সিনেমা থিয়েটার; একটি সাধারণ স্টাডি রুম; একটি আবাসিক লাউঞ্জ/পার্টি রুম ২,০০০ বর্গফুটেরও বেশি, ২৪ ঘণ্টার জন্য খোলার জন্য একটি বিলিয়ার্ড টেবিল। শেষ কিন্তু সবচেয়ে গুরুত্বপূর্ণ নয়, বিখ্যাত স্টার্ক পার্ক - একটি সম্পূর্ণভাবে ভর্তি ৫,০০০ বর্গফুটের ছাদ-পার্ক নিউ ইয়র্ক স্টক এক্সচেঞ্জের মুখোশের অসাধারণ দৃশ্য সহ, প্রতিফলিত পুল, আ fireplace,Dining টেবিল এবং লাউঞ্জ চেয়ার, শুধুমাত্র এই ভবনের অধিবাসীদের এবং তাদের অতিথিদের জন্য ব্যক্তিগত ও বিশেষ।
পাড়া:
NYSE হাঁটার জন্য শুধুমাত্র অঞ্চলের মধ্যে অবস্থিত, ১৫ ব্রড উজ্জ্বল শক্তির মাঝে একটি অনন্য গোপনীয়তা এবং শান্তির অনুভূতি প্রদান করে ফাইন্যান্সিয়াল ডিস্ট্রিক্টে। এই ঐতিহাসিক পাড়া একটি প্রধান আবাসিক গন্তব্যে পরিণত হয়েছে, ওয়াল স্ট্রিটের প্রতীকী স্থাপত্য এবং আধুনিক বিলাসী জীবনের সংমিশ্রণ।
চমৎকার খাবারের কাছাকাছি, বিশ্বমানের শপিং, এবং মাত্র কয়েকটি পদক্ষেপ দূরে একটি নতুন হোল ফুডস। প্রায় সমস্ত প্রধান সাবওয়ে লাইনের (১, ২, ৩, ৪, ৫, এন, আর, ডাব্লু, এ, সি, জে, জেড) কয়েক ব্লকের মধ্যে, পাশাপাশি PATH ট্রেন এবং NYC ফেরি, শহরের বাকি অংশ এবং তার বাইরে সহজেই প্রাপ্য।
Welcome to this rare and expansive corner residence with 3 BRs/2 baths, a windowed office, and a private balcony, at the Downtown Condominium by Philippe Starck, one of FiDi's premier amenity filled residential luxury condos.
THE APARTMENT:
This home features oversized windows, high ceilings, abundant storage, and open north and west city views filling the space with natural light and classic downtown energy.
As you enter, a gracious foyer lined with multiple closets sets the tone. To the left, the Lavender Primary Suite unfolds—a spacious retreat with three closets plus a large walk-in, and a spa-like ensuite bath featuring marble double vanities, an Italian glass-enclosed shower, and a soaking tub. Continuing down the hall, a guest bathroom with abundant space and natural light, and a discreet closet conceals in-unit washer and dryer. To the right, the sleek kitchen offers white-lacquer cabinetry, Thassos marble countertops, and abundant storage. The open living and dining area is flooded with natural light and extends onto a private balcony and iconic views of the New York Stock Exchange. To the left of the living area, the second bedroom features generous closets and west-facing exposure with soaring 11'2" ceilings, then a nice home office with large window. The bright corner third bedroom offers two oversized windows, abundant storage, and open north and west city views.
THE AMENITIES:
15 Broad offers a spectacular list of amenities: 24-hr doorman and concierge; a full-scale gym with state-of-the-art equipment; a lap swimming pool with a jacuzzi hot tub and sauna room; a basketball court; a squash court; a yoga/ballet studio; a children’s room; a bowling alley (free of charge for residents and their guests!); an in-building movie theater; a common study room; a resident lounge/party room of over 2,000 sq ft, a billiard table open for 24 hours. Last but not the least, the renowned Starck Park – a fully landscaped 5,000 sq ft roof-park with sensational views of the facade of the New York Stock Exchange, complete with reflecting pool, fireplace, dining tables, and lounge chairs, private and exclusive only to the residents of this building and their guests.
THE NEIGHBORHOOD:
Located within the NYSE pedestrian-only zone, 15 Broad offers a unique sense of privacy and tranquility amidst the vibrant energy of the Financial District. This historic neighborhood has evolved into a premier residential destination, blending Wall Street’s iconic architecture with modern luxury living.
Close proximity to fine dining, world-class shopping, and a brand new Whole Foods just steps away. With nearly every major subway line (1, 2, 3, 4, 5, N, R, W, A, C, J, Z) within a few blocks, along with the PATH train and NYC Ferry, the rest of the city and beyond is effortlessly accessible.
This information is not verified for authenticity or accuracy and is not guaranteed and may not reflect all real estate activity in the market. © 2026 The Real Estate Board of New York, Inc., All rights reserved.







