| ID # | 975504 |
| বর্ণনা | ৩ বেডরুম , ৩ বাথরুম, ডিশ ওয়াশার মেশিন, ওয়াশার মেশিন, গ্যারেজ, এয়ার কন্ডিশনার, জমির আয়তন: ২.৫ একর, অভ্যন্তরীণ বর্গফুট: 2192 ft2, 204m2 DOM: ১ দিন |
| নির্মাণ বছর | 2026 |
| কর (প্রতি বছর) | $৮,৫০০ |
| জ্বালানীর ধরণ | বৈদ্যুতিক Electric |
| তাপের ধরন | বৈদ্যুতিক Electric |
| এয়ার কন্ডিশনার | কেন্দ্রীয় এয়ার কন্ডিশনার Central Air |
![]() |
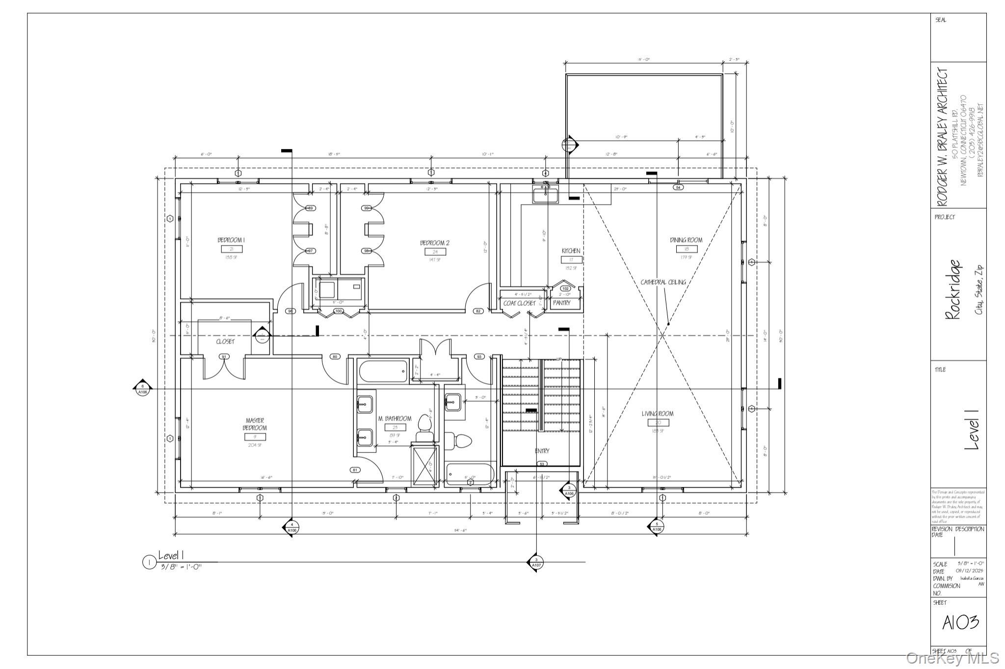
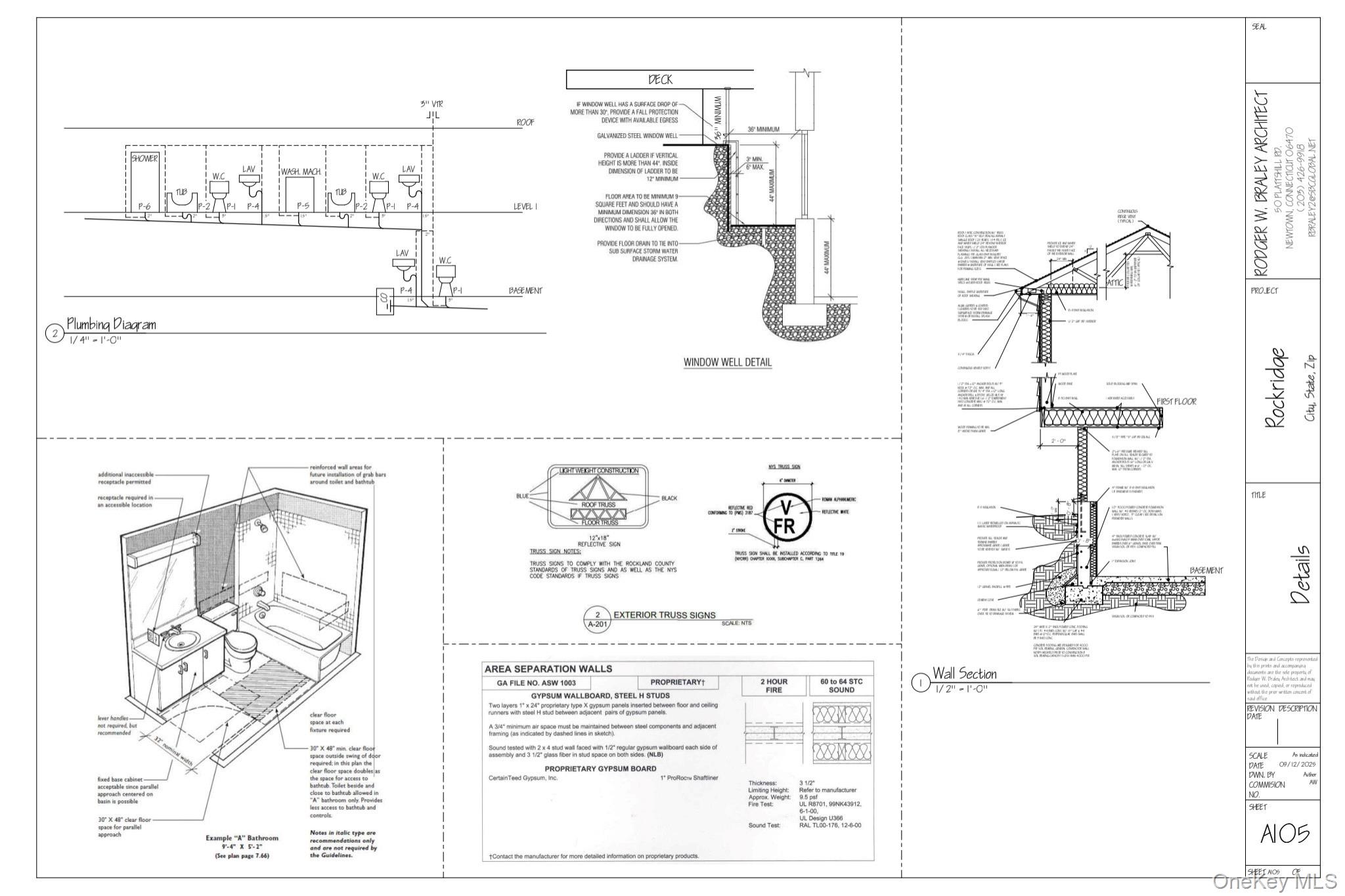
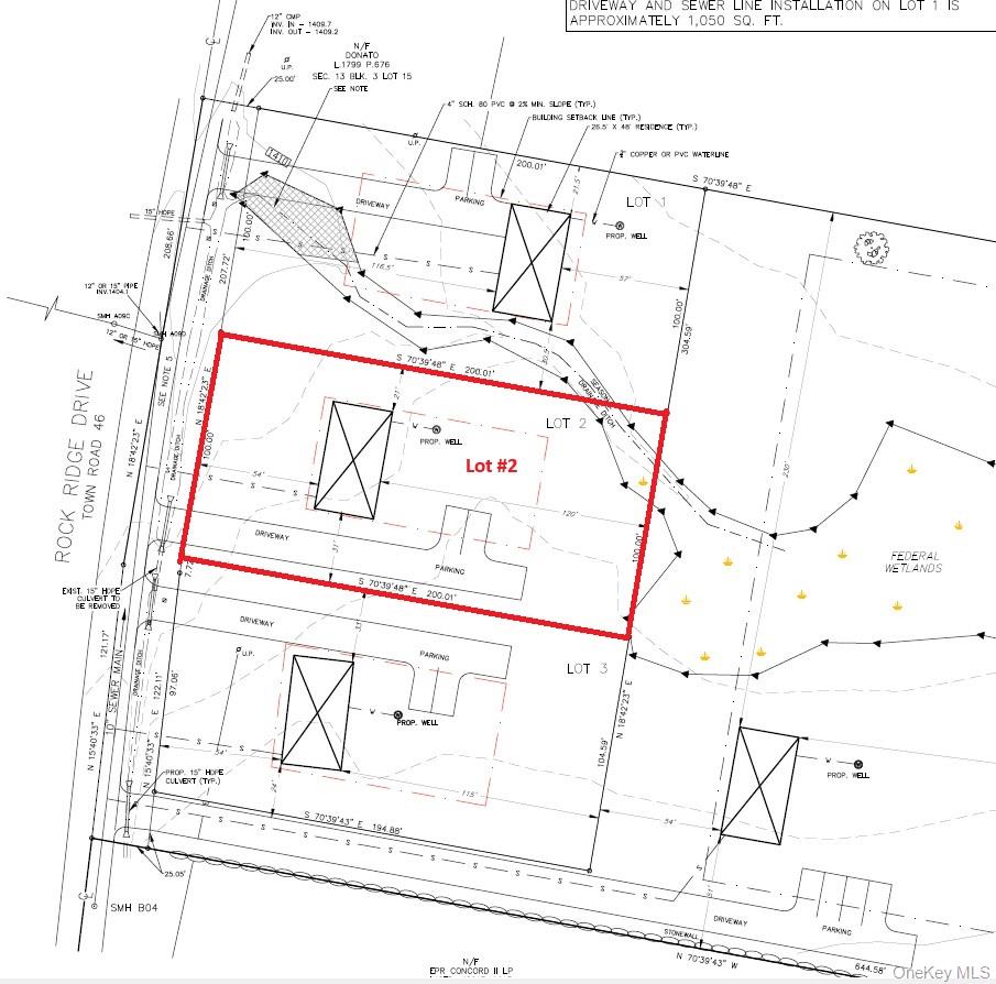
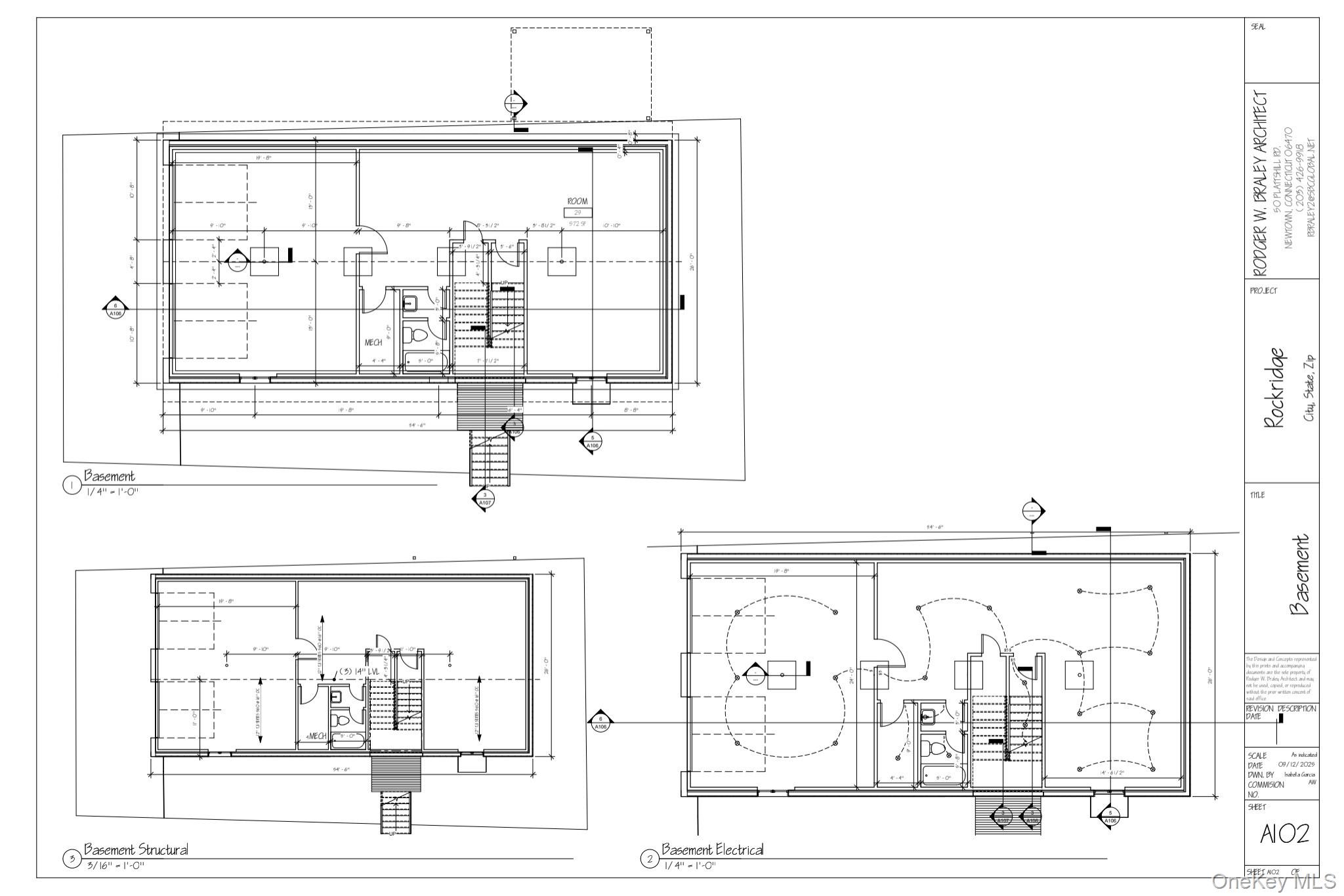
নতুন নির্মাণ - ফ্রেমিং চলছে - রেইজড রাঞ্চ - ৩টি শোবার ঘর - ৩টি পূর্ণ বাথরুম - রান্নাঘর - বসার ঘর - খাবারের ঘর - নিচতলায় একটি পারিবারিক রুম এবং একটি পূর্ণ বাথরুম এবং ২টি গাড়ির গ্যারেজ রয়েছে। ১/২ একর জমিতে অবস্থিত, দোকান, রেস্টুরেন্ট, ক্যাসিনো এবং রুট ১৭ এর নিকটবর্তী।
New Construction - Framing Now - Raised Ranch - 3 Bedrooms - 3 Full baths - Kitchen - Living - Dining room - Downstairs features a family room and a full bath and 2 Car garaage. Set on 1/2 Acre in close proximity to shopping, restaurants, casino and Route 17.
This information is not verified for authenticity or accuracy and is not guaranteed and may not reflect all real estate activity in the market. Listing courtesy of Rieber Realty Inc © 2026







