| ID # | 11679404 |
| বর্ণনা | ৫ বেডরুম , ৩ বাথরুম, এয়ার কন্ডিশনার, জমির আয়তন: ১.২২ একর, অভ্যন্তরীণ বর্গফুট: 3700 ft2, 344m2 DOM: ১ দিন |
| নির্মাণ বছর | 2026 |
| কর (প্রতি বছর) | $২৬,৪৫৮ |
| ইংরেজি ওয়েবপৃষ্ঠা | |
| রেল ষ্টেশন | ১.৪ মাইল দূরে : "Stony Brook রেল ষ্টেশন" |
| ৩.১ মাইল দূরে : "Port Jefferson রেল ষ্টেশন" | |
![]() |
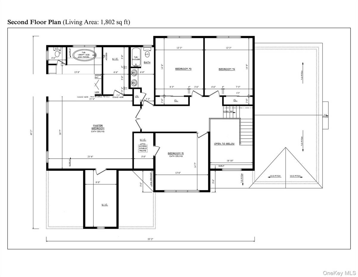
Builder's new construction Concord model offering approximately 3,700 SF of living space with 5 bedrooms and 3.5 bathrooms. First floor includes approximately 1,898 SF with 9' ceilings, featuring a formal living room, dining room, large family room, and a first-floor office/bedroom with full bath. The kitchen is designed with a center island, breakfast area, and butler's pantry, opening directly to the main living space for a functional layout. The second floor offers approximately 1,802 SF with 8' ceilings and includes a primary bedroom with en-suite bath featuring double vanity, soaking tub, and separate shower, along with additional bedrooms, full hall bath, and laundry room. Bedrooms include wall-to-wall carpeting, with hardwood flooring throughout the first floor and upper hallway. Full basement with 8' ceilings provides additional space and flexibility. The home includes a 2-car garage (approx. 916 SF) with interior access. Built with quality materials and finishes including 4" red oak flooring, ceramic tile bathrooms, custom molding and trim, fireplace with mantle, and shaker-style kitchen cabinetry with quartz countertops, ceramic tile backsplash, and stainless steel appliances. Additional features include 2-zone central air system, tankless hot water, 200 amp electric service, and energy-efficient construction. Exterior includes vinyl siding, architectural roof shingles, paver walkway, driveway, sprinkler system, and seeded yard. Located in a limited subdivision in East Setauket, offering new construction in an established residential setting.







