| ID # | 11679405 |
| বর্ণনা | ৪ বেডরুম , ২ বাথরুম, এয়ার কন্ডিশনার, জমির আয়তন: ১.২২ একর, অভ্যন্তরীণ বর্গফুট: 2487 ft2, 231m2 DOM: ১ দিন |
| নির্মাণ বছর | 2026 |
| কর (প্রতি বছর) | $২৬,৪৫৮ |
| ইংরেজি ওয়েবপৃষ্ঠা | |
| রেল ষ্টেশন | ১.৪ মাইল দূরে : "Stony Brook রেল ষ্টেশন" |
| ৩.১ মাইল দূরে : "Port Jefferson রেল ষ্টেশন" | |
![]() |
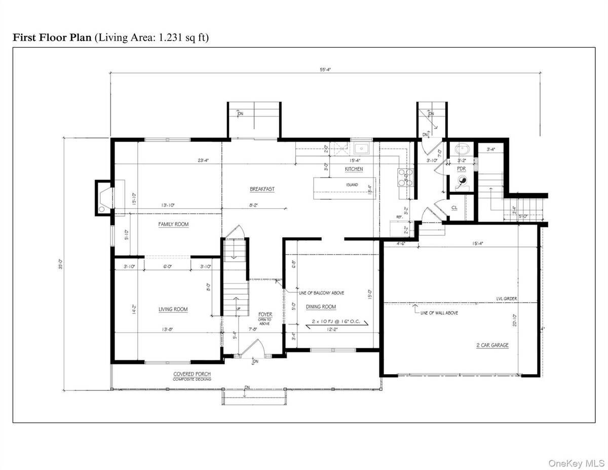
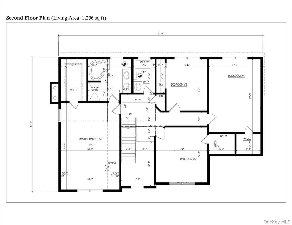
Builder's new construction Birmingham model offering approximately 2,487 sq ft with 4 bedrooms, 2.5 bathrooms and a full basement. First floor features 9' ceilings, hardwood flooring, formal living room, formal dining room, family room with fireplace, and an open layout kitchen with breakfast area. Kitchen includes shaker-style cabinetry, quartz countertops, ceramic tile backsplash, stainless steel appliances, and pantry. Second floor includes primary bedroom with walk-in closet and primary bath featuring double vanity, soaking tub, and separate shower. Three additional bedrooms, full hall bathroom, and second floor hallway complete the level. Additional features include 2-zone central air conditioning, tankless hot water heater, PEX plumbing, custom moldings, and ample closet space throughout. Full unfinished basement with 8' ceilings. Attached garage with interior access. Exterior features include maintenance-free vinyl siding, architectural roof shingles, double-glazed windows, asphalt driveway with paver border, in-ground sprinkler system, and underground utilities.







